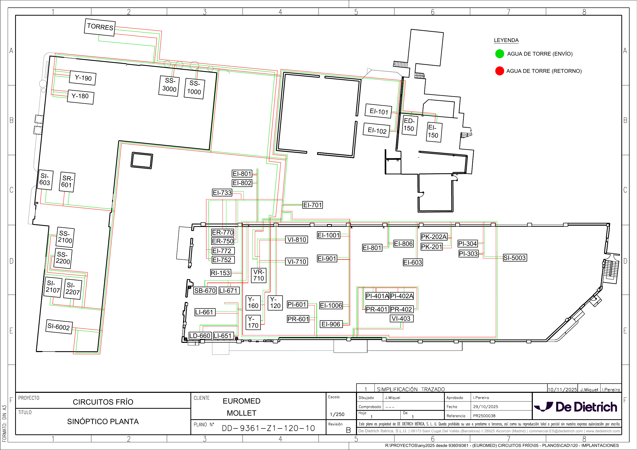
Punts de mesura Euromed

Mesura d'aigua: CDP2NH1 - 186242
Factory layout
Click a point or use the arrows to navigate.